NEDEN PREFABRİK İMALAT SİSTEMİ: En başta seçim nedeni olarak hızlı ve ekonomik olmasını gösterebiliriz. Yani endüstriyel yapılar için en optimum taşıyıcı sistem teknolojisi olduğu söylenmesi yanlış olmaz. Çelik konstrüksiyon yapım süreci açısından en az prefabrik kadar hızlı olmasına rağmen maliyeti prefabriğe göre daha yüksektir. Bunun yanında konvansiyonel inşaat prefabriğe ve çelik konstrüksiyon yapıya göre çok daha az maliyetli olmasına rağmen imalat süreleri çok çok daha fazla süreler almaktadır. Şu anki teknolojide endüstriyel yapılarda kabul edilebilir açıklıklarla geçilmek şartı ile en uygun taşıyıcı sistem çözümü prefabrik taşıyıcılar ile ana konstrüksiyonun teşkili, çatı taşıyıcı sisteminin ise çelik konstrüksiyonla çözülmesidir. Maliyet, süre ve sağlamlık açısından en uygun çözüm budur.
PROJELENDİRME : Sanayicinin ihtiyaçları doğrultusunda endüstriyel yapının projelendirilmesi yapılır.burada önemli olan ihtiyaç duyulan toplam kullanım alanı, kat gabarileri, binaya etkiyecek olan ilave statik ve dinamik yükler, üretim tesisinde kaç kişinin çalışacağı, üretim grubu gibi her türlü değişkenin tam olarak belirlenmesi ve imalata başlanmadan önce projede her türlü detayın eksiksiz olarak çözülmesidir.
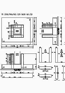
TEMEL SİSTEMİ : Zemin cinsine ve yüklere de bağlı olmak üzere temel çeşidi seçilmektedir. Prefabrik yapılarda kullanılan temel çeşitlerini inceleyelim
A-TEKİL TEMEL : İmalatı kolay olan bir temel sistemidir. Kolay ve hızlı yapılabilir.
Soket içi kalıpları aderansı arttıracak şekilde hazırlanmalıdır. Temel kolonun montajı esnasında her yönden 10 cm tolerans verilerek üretilir. Kolon montajı sonrası kalacak olan bu boşluk temel beton kalitesi ile aynı kalitede beton ile doldurulur. Bu noktada soket iç kalıbında oluşturulan tutunma yüzeyleri aderansı arttırır.
Kolon montajı öncesinde kolonun doğru ve hızlı bir şekilde montajı için projeye uygun bir şekilde köşe gönyeleri oluşturularak prefabrik montaja hız kazandırılacaktır.
Temel hafriyatları ekonomik olması açısından sandık kazı denilen sadece çalışma yapılacak bölümün hafredilmesi yöntemi ile yapılarak hem ekonomi hemde sağlam zeminin örselenmemesi açısından oldukça önemlidir.

Resimde imalatı tamamlanmış bir tekil temel görülmektedir.Yer altı sularının ihtiva ettiği tuzların betona zarar vermesini engellemek amacı için dolgu öncesi kaplama yapılabilir.
B-SÜREKLİ TEMEL : Tekil temel ebatlarının yetersiz kaldığı noktada uygulanabilen temel türüdür. Sürekli perde yapılacak olan kısımlarda da kullanılabilir. İmalatı tekil temelden farklı değildir.

PREFABRİK MONTAJ
Temel sistemi tamamlandığında saha dolguları yapılarak vinçlerin ve taşıyıcıların rahat manevra yapacağı alanlar oluşturulmalıdır.
Bu noktada pratik ön imalatlar montajın ve akabindeki imalatların rahat devam edebilmesine ve ilave ek çalışmalara gerek kalmamasını sağlar.
1-Temellere gönyelerin yapılması
2-Soket içlerinin projede belirtilen kolon altı kotuna kadar beton ile doldurulması
Böylece prefabrik montajı başladığında kolonlar her iki yönde kolay bir şekilde yerleştirilebilirken kiriş ve döşeme kotları da tam kotunda olacaktır.

Prefabrik montaj riskli bir çalışmadır. Her bir eleman en az 4 ton olabilmekte ve bu tonaj 40-50 tonlara kadar çıkabilmektedir. Bu ağırlıkların sevk araçlarından şantiyede montaj için indirilmesi ve montajının yapılabilmesi için vinçler kullanılmaktadır. Vinç ile çalışmalar en riskli çalışmalardandır. Ayrıca tüm montajlarda yüksekte çalışmalar mevcuttur. Bu anlamda personel kaldırıcıların kullanılması, kullanılmasının mümkün olmadığı noktalarda montaj personelinin iş güvenlik tedbirlerini eksiksiz alması kişisel koruyucu ekipmanlarını eksiksiz kullanması çok önemlidir.
Prefabrik montajın sorunsuz yapılabilmesi tamamen montaj öncesi ön hazırlıkların tam ve hatasız yapılmasına bağlıdır. Bu anlamda prefabrik montaj öncesinde yapılan betonarme imalatlar çok önem arz etmektedir. Uzman ekiplerce yapılması çok önemlidir. Keza geri dönüşü hem zaman hem de ekonomik kayıp demektir.
Bunun yanında prefabrik yapı montajında kullanılan makine ve sevk araçları düz ve sağlam bir zemine ihtiyaç duymaktadır. Bu anlamda montaj yapılacak olan tüm alanların saha dolguları yapılıp reglajının yapılması ve sıkışma değerleri sağlanmalıdır. Ancak bu hazırlıklar tamamlandıktan sonra prefabrik eleman montajlarına başlanabilir.

Prefabrik yapılarda değişik döşeme sistemleri kullanılabilmektedir. Edindiğim deneyimlere göre en optimum çözülebilen döşeme sistemi boşluklu döşeme olarak bilinen döşeme sistemidir.Projelendirme aşamasında ihtiyaç duyulan yük değerlerine bağlı olarak boşluklu döşeme sistemi tercih edilebilir.

Boşluklu döşeme kalınlıkları taşıması gerekli olan yük değerlerine bağlı olarak artabilmektedir. Ön gerilmeli yapı elemanlarıdır. Bu yüzden montaj sonrasında her noktasından kot değerleri alınarak en yüksek noktası referans alınmalıdır.
Boşluklu döşeme sistemleri tek başlarına yük taşıma özelliklerine sahip değildirler. Bu döşeme sistemlerini plak olarak çalışmasını sağlamak amacı ile topping betonu denilen 8-12 cm kalınlar aralıklarında beton döşemeler kullanılmaktadır. Böylece döşeme ve taşıyıcı kolon-kiriş ile monolitik çalışma kabiliyeti kazanmaktadır.
Prefabrik yapılarda son olarak çatı taşıyıcı sitem ve dış kaplama örtü imalatları yapılmalıdır. Bu noktada çatı taşıyıcı sistemi için en optimum çözüm bence çelik konstrüksiyon taşıyıcı sistemdir. Hem hafif hem de bağlantı noktaları sıkıntısız olarak çözülebilmektedir. Bu anlamda prefabrik makas sistemlerine göre biraz daha fazla maliyetli olması ve bakım maliyetleri olmasının yanında binaya verdiği yüklerin daha az olması ile ön plana çıkmaktadır. Ayrıca ülkemizde çelik konstrüksiyon konusunda firmalar son dönemde çok fazla ilerlemeler kaydetmişler Avrupa normlarında üretimler yapılmaktadır.
Dış kaplama örtüsü için seçenekler oldukça fazladır.Bu tamamen kullanıcının ihtiyaçlarına bağlıdır.Dış cephe örtüsü seçiminde değişik faktörler devreye girmektedir.Bunlar;
1-Süre
2-Maliyet
3-İzolasyon ihtiyacı olup olmadığı
4-Yangın güvenliği
Bunlara bağlı olarak tuğla,gazbeton,prekast,sac panel sistemler(poliüretan veya taşyünü) kaplama sistemlerinden herhangi biri seçilerek gerekli bağlantı alt yapıları ile bina tamamlanabilmektedir.